




Вилла Small Paradise
Вилла Small Paradise





Выбор номера
Удобства и услуги
Интернет
- Бесплатный Wi-Fi
- Бесплатный доступ в интернет
Парковка
- Парковка
Питание
- Бесплатный чай/кофе
- Кухня
- Микроволновая печь
- Упакованные ланчи
Общее
- Дизайн-отель
- Индивидуальная регистрация заезда и отъезда
- Кондиционер
- Курение разрешено
- Мебель на улице
- Обмен валюты
- Огнетушитель
- Отель для некурящих
- Посудомоечная машина
- Пресса
- Сад
- Стиральная машина
- Сушилка
- Телевизор в лобби
- Терраса
- Ускоренная регистрация заезда и выезда
В номерах
- DVD-плеер
- VIP-удобства в номере
- Запирающийся шкафчик
- Кабельное телевидение
- Люкс для новобрачных
- Москитная сетка
- Номера для аллергиков
- Номера для некурящих
- Номера со звукоизоляцией
- Сейф (в номере)
- Семейные номера
- Телевизор
- Халат
- Холодильник
Услуги и удобства
- Гладильные принадлежности
- Гладильные услуги
- Прачечная
- Утюг
- Фен (по запросу)
- Химчистка
- Хранение багажа
Санитарные меры
- Индивидуальные средства защиты для гостей
- Индивидуальные средства защиты для персонала
- Температурный контроль для персонала
- Усиленные меры дезинфекции
Персонал говорит
- на английском
Описание отеля
Вилла Small Paradise располагается в Ялиссосе. Рядом с виллой — Родосский акрополь, аквапарк Фалираки и дворец Великого Магистра рыцарей Родоса.
На территории работает бесплатный Wi-Fi. Припарковаться можно будет на парковке рядом. Гостям также доступны следующие услуги: спа-центр и врач. Любителям спорта подготовили тренажёрный зал, настольный теннис.
Среди развлечений на территории — библиотека, площадка для пикника и площадка для барбекю. Есть бассейн и открытый бассейн. Любимца не придётся оставлять дома: разрешается проживание с питомцем за дополнительную плату.
Гостям доступны и другие услуги. Например, индивидуальная регистрация заезда и отъезда, гладильные услуги, пресса и прокат автомобилей. Персонал виллы говорит на английском.
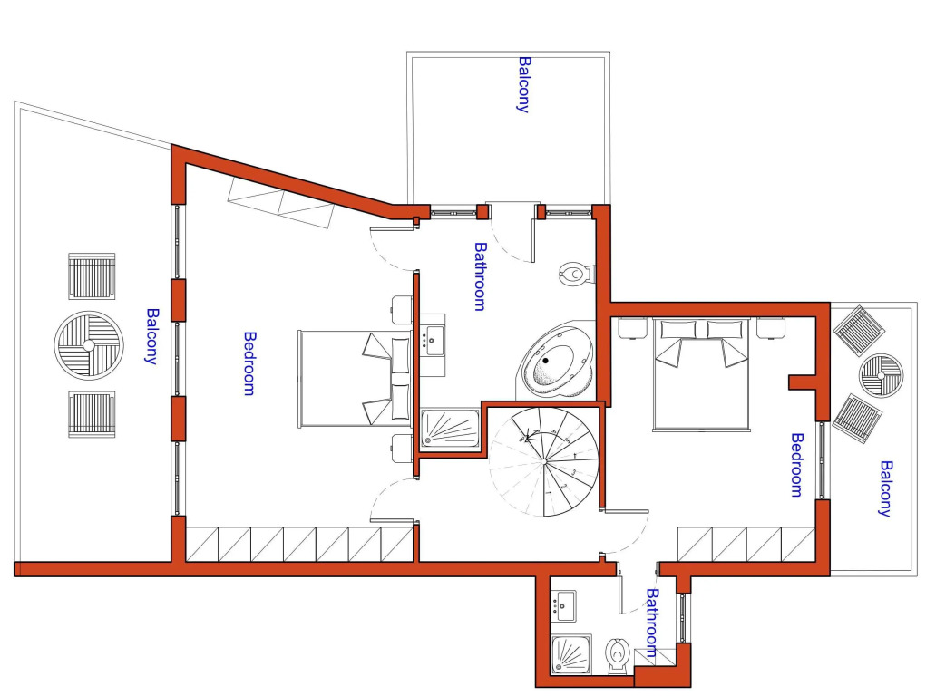
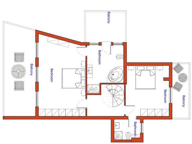
В номере гостей ждут DVD-плеер, телевизор и халат.
Условия размещения
Заезд и выезд
Заезд с 16:00
Выезд до 10:00

















































